Il nostro lavoro
è soddisfare le vostre richieste
Toggle navigation
Home
Immobili
Vendite
Affitti
Attività
Immobili commerciali
Chi siamo
Servizi
Contatti
Compatta pannello di ricerca immobili
Espandi pannello di ricerca immobili
Tipologia
Vendite
Affitti
Attività
Immobili commerciali
Categoria
Qualsiasi
1 locale
2 locali
3 locali
4 o più locali
Appartamento
Attico
Azienda agricola
Baita
Cantina
Capannone
Casa singola
Castello
Duplex
Garage
Hotel
Laboratorio
Loft
Magazzino
Maisonette
Mansarda
Negozio
Porzione di casa
Porzione di villa
Posto auto
Posto barca
Rustico / Casale
Stabile / Palazzo
Tenuta
Terreno
Terreno agricolo
Terreno edificabile
Ufficio
Villa
Villa bifamiliare
Villetta a schiera
Città
Tutte
Ala (TN)
Aldeno (TN)
Almese (TO)
Avio (TN)
Besenello (TN)
Bovolone (VR)
Brentonico (TN)
Calliano (TN)
Campodenno (TN)
Casaleone (VR)
Cavedine (TN)
Cerea (VR)
Colognola ai Colli (VR)
Dolcè (VR)
Folgaria (TN)
Isera (TN)
Malcesine (VR)
Mori (TN)
Nogaredo (TN)
Papozze (RO)
Riva del Garda (TN)
Ronzo Chienis (TN)
Rovereto (TN)
San Pietro di Morubio (VR)
Selvazzano Dentro (PD)
Torri del Benaco (VR)
Trambileno (TN)
Trento (TN)
Vallarsa (TN)
Volano (TN)
Zona
Tutte
Prezzo (da - a)
Mq (da - a)
Codice
Ordinamento
Inserimento
Codice
Categoria
Città
Zona
Prezzo
Metri quadri
Cerca
AVIO - SABBIONARA - Vendesi 3 camere da letto ultimo piano
250.000 €
120 m
2
3 Camere
1 Bagni
Previous
Next
Foto
Codice
V002970
Città
Avio
(Sabbionara)
Categoria
4 o più locali
Locali
4
Posti auto
1
Classe energetica
In fase di valutazione
Stato Immobile
Abitabile
Grado
Medio
Posizione
Periferia
Panorama
Vista Monti
Orientamento
Nord Ovest Sud Est
Lati Liberi
3
Giardino
Cortile
Arredi
Arredato
Tipo Soggiorno
Soggiorno
Tipo Cucina
Angolo Cottura
Riscaldamento
Autonomo
Tipo Riscaldam.
Caldaia
Tipo Impianto
Radiatori
Fonte Energetica
Metano
Acqua Calda
Autonoma
Raffrescamento
No
Infissi
Legno Doppio Vetro
Serramenti
Buono
Persiana
Oscurante Legno
Pavim. Giorno
Ceramica
Pavim. Notte
Ceramica
Pavim. Cucina
Ceramica
Pavim. Bagno
Ceramica
Accesso Disabili
No
Accesso interno disabili
Non accessibile
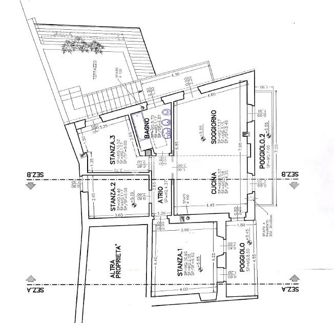
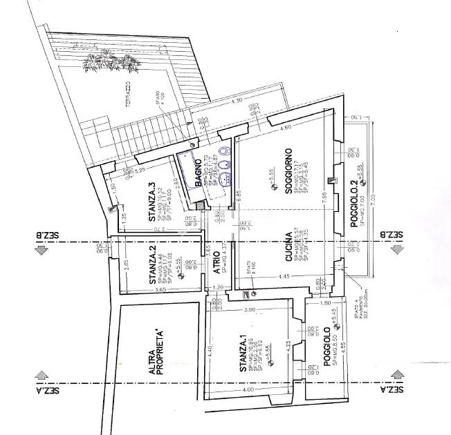
V002970 - Avio, località Sabbionara, proponiamo in vendita al secondo ed ultimo piano in palazzina di 2 unità abitative grande appartamento composto da soggiorno con angolo cottura, 3 camere da letto, bagno finestrato e 3 balconi.
Caldaia autonoma, Possibilità di ricavare un posto auto esterno privato.
Rif. V002970 - Tiziano 393.9208828
Condividi
Tweet
Mantieni impostazioni di default X
Uso dei cookies
Questo sito fa uso di cookies. I nostri cookies (propri) e quelli dei nostri Partners (cookies di terzi) servono per poterti offrire un'esperienza unica con noi. Per questo motivo, insieme ai nostri partners, raccogliamo e processiamo informazioni non sensibili (come l'identificatore del tuo dispositivo o le pagine che visiti).
In qualsiasi momento potrai eliminare, modificare o verificare le informazioni che condividi in
Cookie preference
o nella nostra
Cookie Policy
e
Privacy Policy
.
Necessari
Funzionali
Profilazione
Analitici
Accetta tutti
Rifiuta tutti
Accetta selezionati
Cookie preference